Our office is affiliated with Baerz & Co, a joint-venture of selected, privately owned boutique luxury home agencies throughout Europe. For more information about these properties, please contact our office.

ALGORFA
Spain

Peter Ablij profile image
Peter Ablij
Personal Property Advisor
€995,000
Living Area
199m2
Plot Size
10078m2
Bedrooms
4

Description

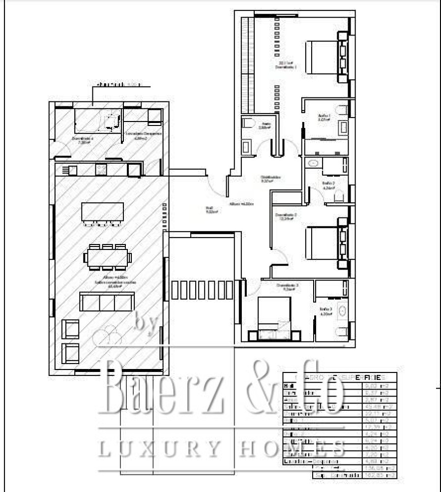
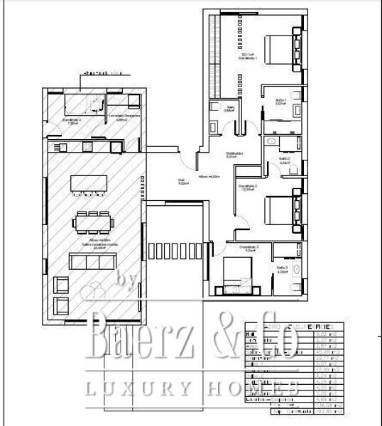
Villa Algorfa embodies understated luxury, offering a rare combination of privacy and open Mediterranean air on a 10,078 m² rustic plot. This villa Algorfa, with a 199 m² interior, invites tranquil living just 2 km from La Finca Golf Resort and a short drive from Guardamar Beach.

Inside, the four-bedroom, four-bathroom layout harmonizes an open-concept design with expansive living, anchored by a modern kitchen and generous windows that welcome natural light. Sliding glass doors extend the flow to a private terrace and a swimming pool, where sunlight lingers and views reach into the quiet landscape. Each bedroom ensures personal retreat, while optional extras offer scope for customization or expansion.

Essential comforts include LED lighting, motorized electric blinds, Ariston aerothermal water heater, complete air conditioning, underfloor heating in bathrooms, and a video intercom system. With solar panels and automated entrance gate, sustainability is woven into daily life.

Positioned close to the prestigious Almoradí Tennis Club, major roadways, Alicante and Murcia airports, and Zenia Boulevard shopping, this villa offers both discreet seclusion and seamless access. Here, refined design is matched by the balance of rhythm and relaxation, framing an authentic Mediterranean lifestyle.

Explore Algorfa with Baerz, Your Trusted Personal Property Finder & Advisor

Navigating Algorfa’s niche market calls for a specialist touch. Sophisticated buyers and investors benefit from advisors who offer access to discreet, off-market opportunities and invaluable local insight. The complexity of cross-border transactions and negotiation demands expert guidance, ensuring clients secure properties that align with both their lifestyle vision and investment strategies.

Avoid common pitfalls

International buyers often waste valuable time on duplicate, outdated or misleading online listings, especially since nearly 30% of luxury homes never appear on the public market. Seller’s agents represent the seller’s interests, not the buyer’s. Even requesting information about a property can result in a seller’s agent registering you as their “client” without your consent.
With Baerz Property Finders & Advisors, you avoid all these pitfalls entirely. We work solely on your behalf, offering independent representation, clear guidance and access to all available properties, including off-market opportunities that others never get to see.

Interested in a Personal Property Advisor?

We show you all available homes in one place. Feel free to contact us to learn how we can meet your needs and protect your interests exclusively.

Features

Swimming pool
Transfer of ownership
Asking Price
€ 995.000
Reference
CBS42804
PRI
Construction
Kind of house
villa
Rooms
N/A
Bedrooms
4
Bathrooms
4
Surface Areas And Volume
Living Area
199 m2
Plot Size
10078 m2
Facilities
Pool
 

Videos

Information / Viewing request

Peter Ablij profile image
Peter Ablij
Personal Property Advisor

Buying a Luxury Property in Algorfa

Algorfa’s cultivated community, refined homes, and international outlook create a destination of quiet distinction. Residents benefit from curated amenities, lifestyle services, and a seamless connection to the wider Mediterranean region.