Our office is affiliated with Baerz & Co, a joint-venture of selected, privately owned boutique luxury home agencies throughout Europe. For more information about these properties, please contact our office.

Appartement for sale in 'S-GRAVENHAGE

'S-GRAVENHAGE Hellingkade 82 - 2583 WC The Netherlands


Irma Postma profile image
Irma Postma
Real Estate Agent
+31 (70) 350 14 00
info@nelisse.nl

Nelisse Makelaarsgroep
Statenlaan 128
2582 GW Den Haag
NETHERLANDS
+31 (70) 350 14 00
www.nelisse.nl
info@nelisse.nl

Living area
86m2
Plot size
N/A
Bedrooms
2

Description

Would you like to enjoy the summer in your newly built apartment by the coast this year? This comfortable 3-room apartment with a sublime view of the harbor and the sea offers just that!

Imagine this: waking up to the sound of the waves, having a cup of coffee on your balcony with a panoramic view of the harbor and the sea, and experiencing the ultimate vacation feeling every day – right in your own apartment. This beautiful apartment on the coast of Scheveningen not only offers breathtaking views of the harbor and the sea but also the vibrant atmosphere of the beach, the boulevard, and the harbor. Here, you can enjoy the fresh sea air and the bustling beach life, while at the same time benefiting from the comfort and tranquility of your own home. A unique opportunity to make every day feel like a holiday!

Located by the sea, the beach, and the dunes, close to the lively harbor with its many restaurants, varied shopping streets such as Frederik Hendriklaan, the Fred just a short walk away, and close to the historic city center of The Hague.

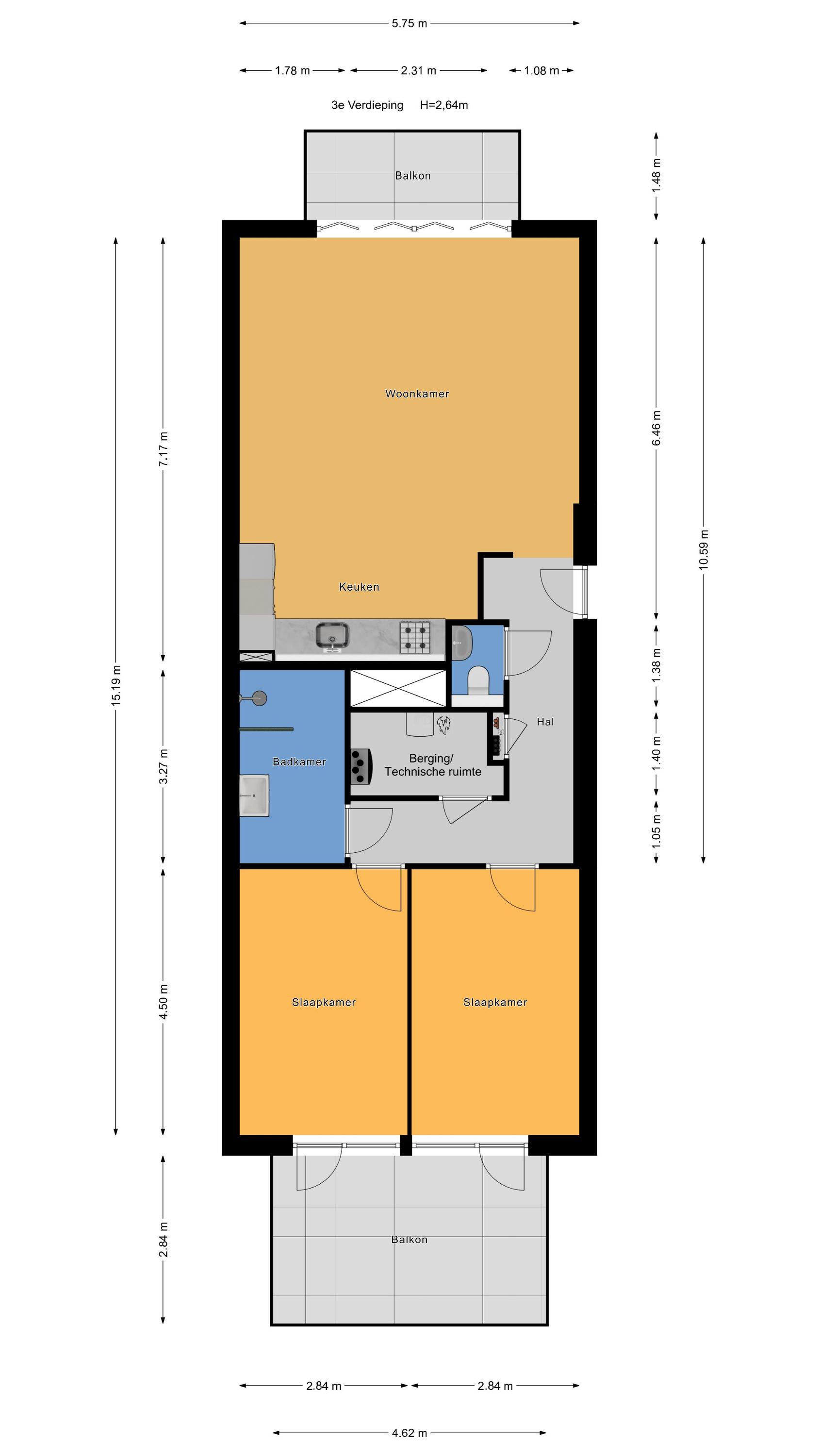
The apartment is located on the third floor and offers approximately 85 m2 of living space, plus a balcony on both the front and back, 2 bedrooms, a luxury kitchen, luxury sanitary ware, and private parking. Fully insulated and gas-free, making it completely up-to-date.

Layout:

Entrance, hall, modern toilet, modern bathroom with a walk-in shower, washbasin with vanity unit, and towel radiator (Duravit sanitary ware), integrated technical room/storage with a heat pump, ventilation system, and washer/dryer connections. The spacious living room on the harbor side offers a phenomenal view thanks to large windows and the folding/sliding door to the balcony. From the living room and balcony, you have views of the Scheveningen harbor and the sea, a lively view that never gets boring with the arriving and departing fishing boats, pleasure yachts, and numerous water sports enthusiasts.

The open NEXT-125 kitchen, with a corner setup, is equipped with a composite countertop and built-in appliances: induction cooktop with integrated ventilation, dishwasher, fridge/freezer combination, Quooker, and combi oven. At the rear of the apartment, there are 2 bedrooms, both of which provide access to the spacious sun-drenched balcony on the south, overlooking the shared courtyard.

The apartment is equipped with underfloor heating and cooling in all rooms, except for the technical room/storage.

Separate spacious storage with electricity supply and a large private parking space in the basement (with an option for an individual charging station for your electric car).

Communal indoor bicycle storage with charging facilities for your electric bike.

Unique Selling Points:

Gas-free
Energy-efficient
Underfloor heating and cooling
Heat pump ownership
SWK warranty applicable
Energy label A+++
VvE contribution €219.61 (apartment and storage) and €42.88 for parking space
Perpetual leasehold, with the ground lease prepaid
Any transfer tax benefit goes to the seller
Quick delivery possible

Features

Transfer of ownership
price
€ 800.000 k.k.
Status
beschikbaar
Acceptance
in overleg
Construction
Kind of house
Portiekflat
Building type
appartement
Construction period
2024
Energy rating
A_PPP
Roof type
plat dak
Bedrooms
2
Bathrooms
1
Surface Areas And Volume
Living area
86 m2
Other indoor space
0 m2
Exterior space attached to the building
18 m2
External storage space
6 m2
Volume in cubic meters
289 m3
facilities
Mechanische ventilatie
Lift
Glasvezel kabel
Balansventilatie
Vrij uitzicht
Open ligging
Zeezicht
Baerz & Co Property Brochure

Brochure

Information / Viewing request

Videos

Photos

Floor Plans